Se você se interessa por arquitetura e design, mora ou esteve em São Paulo nos últimos anos – especialmente em 2024 – é bem possível que conheça ou tenha frequentado a Galeria Metrópole, no Centro da capital paulista. A Metrópole foi um dos hubs da DW! Semana de Design de São Paulo em 2024, com uma programação intensa e instigante.
A parceria deu tão certo que, neste ano, a experiência se repete de 10 a 16 de março, com palestras, feiras, exposições e muitas outras atividades inéditas.
Do Maximus à Metrópole
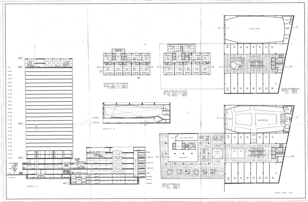
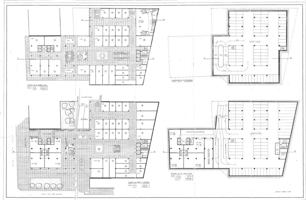
Em 2024, à época da 13ª DW! SP, a gente contou aqui no Blog um pouco sobre alguns marcos arquitetônicos do Centro paulistano, que fizeram parte do último festival. Entre eles, estava a Metrópole. A galeria foi projetada pelos arquitetos Gian Carlo Gasperini (1926-2020) e Salvador Candia (1924-91), com propostas concorrentes e que foram convidados a resolver a arquitetura do lugar em parceria.



O Conjunto Maximus – batizado posteriormente de Centro Metropolitano de Compras e conhecido pelo nome de Galeria Metrópole – foi construído de 1959 a 1964. Seu projeto respeitou o entorno, tornando-se permeável à cidade, com uma circulação que dialoga especialmente com a Avenida São Luís (tida por muitos como a ‘mais bonita de São Paulo’) e com a Praça Dom José Gaspar.
Assim como outros edifícios e espaços públicos do Centro – a exemplo do Copan, do Viadutos e do Vale do Anhangabaú –, a Metrópole é um exemplar precioso da história paulistana. Modelo da Arquitetura Modernista, está preservada em diferentes níveis pelo Concresp – Conselho Municipal de Preservação do Patrimônio Histórico, Cultural e Ambiental da Cidade de São Paulo para o majestoso Cine 3 Metrópole, a Galeria em si e o Edifício Maximus.
A preservação do patrimônio arquitetônico, como no caso da Galeria Metrópole, vai além da memória construída. Atinge uma esfera afetiva e de pertencimento latente e perceptível na rotina, seja dos residentes ou de visitantes que conhecem os espaços e descobrem toda a criatividade e as possibilidades existentes ali.

Um ontem recente, um agora pujante
A Galeria Metrópole nasceu para ser um shopping de luxo, com suas 14 escadas rolantes – que lembram as do parisiense Bon Marché – e um cinema que ostenta ainda hoje um lustre de cristal gigantesco no saguão. Propósito e glamour que não se mantiveram por muito tempo, pelas transformações no contexto urbano e social da cidade. Seu primeiro auge foi nos anos 1960 e 70, como um centro criativo, artístico e de resistência à conjuntura política estabelecida, seguido pelo declínio que se iniciaria na década de 1980.
Após os anos esvaziamento, a década de 2010 assistiu ao retorno da cultura e da arte à Galeria, substituindo gradativamente o perfil de negócios instalados, entre agências de turismo, casas de câmbio, lotéricas e outros serviços. O espaço conquistaria, então, um novo status de lugar interessante da cidade, movido especialmente por bares e eventos que ampliaram, diversificaram e rejuvenesceram o público frequentador. Tudo ia bem, até que a pandemia de Covid-19 se alastrou e afetou profundamente muitos negócios, incluindo boa parte dos novos nichos presentes na Metrópole.
No pós-pandemia, dois cenários se estabeleceram no Centro: se, por um lado, houve o agravamento de questões sócio-urbanas como o aumento da população em situação de rua e o esvaziamento de espaços comerciais, por outro existiu uma expressiva movimentação para que a cidade – em especial a região central – se tornasse mais acessível, segura e ocupada.
A Metrópole retomou sua potência neste contexto, quase trinta anos depois e, hoje, resgata e vive sua vocação de reunir pessoas e promover a arte, a cultura e a economia criativa. Mais de 20 estúdios e designers escolheram a Galeria como endereço, além de livrarias, restaurantes, cafés, brechós, ateliês, lojas colaborativas e outros empreendimentos que têm a inovação e o olhar autoral em comum.






Espaços que se reinventam com o design
O ano de 2022 marca o início da parceria Metrópole + DW! SP, que segue se fortalecendo e contribuiu para dar tração à ocupação do lugar pela economia criativa. A tomada dos corredores ajardinados e pavimentados com granilite formado por pedras grandes, no entanto, foi gradativa.
Alguns nomes, como a artista Ju Amora e o designer Bruno Niz, apostaram e trouxeram a DW! SP para dentro das lojas, à época sinalizadas com um adesivo enorme na vitrine. A empreita valeu a pena e abriu as portas para outros eventos e feiras de design, literatura, artes e outros temas, que seguem ativos e colaborativos pelos corredores da Metrópole. Um deles, por exemplo, é o Design na Metrópole, que constantemente promove palestras, exposições, lançamentos e abre para visitas os estúdios e ateliês.
A DW! SP se manteve em 2023 na Galeria, aproveitando principalmente as áreas comuns. Conversas e parcerias com a DW! revelaram com o passar do tempo o potencial que o festival ainda tinha a explorar, trazendo ainda mais impactos positivos para os designers e todos os residentes da Metrópole. O resultado de diversas ações e conversas foi ainda mais visível em 2024, quando a DW! situou um de seus principais hubs de eventos na Galeria.
E agora, em sua 14ª edição da DW! Semana de Design de São Paulo, o festival terá novamente uma programação muito especial ali, que – em breve – serão divulgados aqui no Blog, na sessão Acontece e em nossas redes sociais, como no perfil da DW! no Instagram. Além de ativar diversos locais no eixo Centro, Paulista e Higienópolis, o festival está presente em vários Distritos de Design que abrangem toda a cidade, como Pinheiros, Vila Madalena e Oeste; Alameda Gabriel; D&D Shopping; Shopping Lar Center e Norte; Jardins, Ibirapuera, Moema e Sul.
Quer saber todos os detalhes da Programação 2025? Aproveite e assine nossa newsletter para receber várias dicas e novidades em primeira mão. Esperamos você!
